17 Gewerbeboxen warten auf ihre neuen Mieter

Bist du auf der Suche nach einem neuen Geschäftslokal?

Unsere modernen Gewerbeboxen bieten dir optimale Voraussetzungen für dein Unternehmen. Jede Box verfügt über zwei Etagen und bietet eine Gesamtfläche von rund 120 m², die flexibel genutzt und an deine Bedürfnisse angepasst werden kann. Alle wichtigen Informationen zur Vermietung findest du nachstehend.

 

Voraussichtlicher Bezugstermin: Mai / Juni 26


Gewerbeflächen im modernen Businesspark

Die Gewerbeboxen sind in erster Linie für gewerbliche Nutzung vorgesehen und richten sich primär an Unternehmen, Handwerker, Dienstleister und Start-ups. Da sich das gesamte Projekt in einem ausgewiesenen Gewerbegebiet befindet und als moderner Gewerbepark konzipiert ist, steht die Nutzung durch Gewerbetreibende im Vordergrund.

 

Ein kleiner Teil der Boxen kann – sofern es der Verwendungszweck zulässt – auch an Privatmieter vergeben werden. Die Ausrichtung des Projekts bleibt jedoch klar gewerblich, um den Standortcharakter und die optimale Nutzung als wirtschaftlich orientierten Gewerbepark sicherzustellen.

 


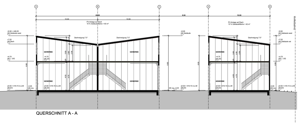
Technische Eckdaten der Gewerbeboxen

  • Anzahl Einheiten: 17 Stück
  • Parkplätze: 1 Parkplatz pro Box; zusätzliche Parkplätze können dazugemietet werden, plus 2 Besucherparkplätze
  • Boxenmasse: 10,0 m × 6,0 m mit Zwischenboden – ergibt rund 120 m² Nutzfläche pro Box
  • Kubatur: ca. 490 m³ pro Einheit
  • Ausstattung: Alle Boxen sind beheizt (Fernwärme) und verfügen über Anschlüsse für Wasser, Abwasser sowie Strom
  • Gebäudehöhe: Gesamthöhe 8,90 m am höchsten Punkt, Dachneigung ca. 12°
  • Toranlage: Elektrisches Sektionaltor, ca. 5 m breit und 4,20 m hoch
  • Eigene Eingangstür, direkt im Tor integriert
  • Energieeffizienz: Isolierung nach modernstem Energiestandard, 0,2 W/m²K
  • Geschosse: Erdgeschoss und Obergeschoss über eine feste Treppe verbunden

 

Mietpreise – Erstvermietung

Spezialangebot für Frühbucher!

Monatliche Mietkosten:

  • Boxenmiete: CHF 1’199.–

  • Parkplatz: CHF 75.– pro Platz

  • Nebenkostenpauschale: CHF 25.– (exkl. Strom, Wasser und Heizung)

Totalmiete pro Box: CHF 1’299.– pro Monat

 

Individuelle Verbrauchskosten:

  • Strom, Wasser und Abwasser werden über separate Zähler pro Box abgerechnet.

Heizung:

  • Alle Boxen sind beheizt – im Erdgeschoss und Obergeschoss jeweils mit Bodenheizung.

 

Verfügbare Boxen & Flächen

Grün = freie Fläche

Rot = vermietete Fläche


Kontakt

Wenn Sie Fragen haben, zögern Sie bitte nicht, uns zu kontaktieren.

 


Bauherrengemeinschaft Friedbergstrasse Wangen

PB Immobilien AG

Haselweg 14
3380 Wangen a. A.

Share it!